
A-A-55425A
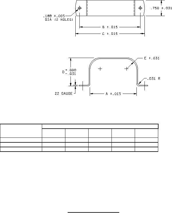
Dimension chart
Inches
mm
CID PIN
Dimension
Dimension Dimension Dimension
Dimension
.005
0.13
A-A-55425
A
B
C
D
E
.015
0.38
-01
2.063
2.563
2.938
1.250
.625
.031
0.79
.188
4.78
-02
2.813
3.313
3.688
1.781
.906
.625
15.88
-03
3.562
4.000
4.438
1.906
.938
.750
19.05
.906
23.01
.938
23.83
1.250
31.75
1.781
45.24
1.906
48.41
NOTES:
2.063
52.40
2.563
65.10
1. Dimensions are in inches.
2.813
71.45
2. Metric equivalents are given for general information only.
2.938
74.63
3.313
84.15
3.562
90.47
3.688
93.68
4.000
101.60
4.438
112.73
FIGURE 1. Dimensions and configuration.
2
For Parts Inquires submit RFQ to Parts Hangar, Inc.
© Copyright 2015 Integrated Publishing, Inc.
A Service Disabled Veteran Owned Small Business