
INCH-POUND
MIL-C-11015/24F
14 May 2001
SUPERSEDING
MIL-C-11015/24E
8 April 1974
MILITARY SPECIFICATION SHEET
CAPACITORS, FIXED, CERAMIC DIELECTRIC (GENERAL PURPOSE),
STYLE CK41, CK42, CK43, CK50, CK51, CK52, CK53, CK54, and CK55
This specification is approved for use by all Depart-
ments and Agencies of the Department of Defense.
The requirements for acquiring the product described herein
shall consist of this specification and MIL-C-11015.
INACTIVE FOR NEW DESIGN.
FOR REPLACEMENT PURPOSES ONLY
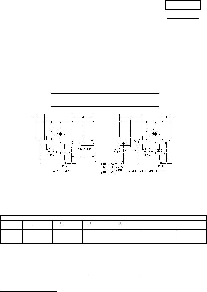
Dimensions
Style
+.004 (.10)
H (Ref)
W .020 (.51)
L .020 (.51)
T .015 (.38)
C .010 (.25)
M
-.001 (.03)
CK41
.080 (2.03)
.090 (2.29)
.045 (1.14)
.100 (2.54)
.016 (.41)
.160 (4.06)
CK42
.130 (3.30)
.140 (3.56)
.045 (1.14)
.100 (2.54)
.016 (.41)
.210 (5.33)
CK43
.230 (5.84)
.230 (5.84)
.045 (1.14)
.200 (5.08)
.016 (.41)
.300 (7.62)
FIGURE 1. Styles CK41, CK42 and CK43
AMSC N/A
1 of 9
FSC 5910
DISTRIBUTION STATEMENT A. Approved for public release; distribution is unlimited.
For Parts Inquires submit RFQ to Parts Hangar, Inc.
© Copyright 2015 Integrated Publishing, Inc.
A Service Disabled Veteran Owned Small Business