
INCH-POUND
MIL-C-5/1H
21 June 2011
SUPERSEDING
MIL-C-5/1G
15 December 2003
MILITARY SPECIFICATION SHEET
CAPACITORS, FIXED, MICA DIELECTRIC,
STYLE CM15
This specification is approved for use by all Departments
and Agencies of the Department of Defense.
The requirements for acquiring the product described herein
shall consist of this specification and MIL-C-5.
INACTIVE FOR NEW DESIGN
after 31 March 1999
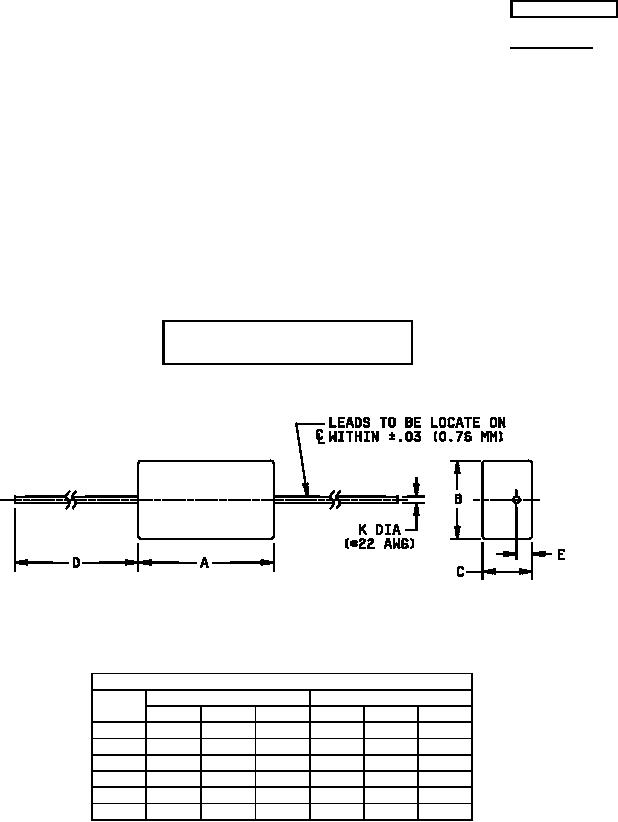
FIGURE 1
DIMENSIONS
Inches
mm
DIM
MIN
NOM
MAX
MIN
NOM
MAX
A
.48
.52
.55
12.19
13.21
13.97
B
.27
.30
.31
6.86
7.62
7.87
C
.14
.19
.22
3.56
4.83
5.59
D
1.12
---
---
28.45
---
---
E
.06
---
---
1.52
---
---
K
.023
.025
.027
.58
.64
.69
NOTES:
1. Dimensions are in inches.
2. Metric equivalents are given for general information only.
3. Approximate weight .05 ounce.
4. Unless otherwise specified, tolerance is ±.02.
AMSC N/A
FSC 5910