
MIL-C-62F
4.4.1.2 Group A inspection. Group A inspection shall consist of the examination and tests specified in table V, and
shall be made on the same set of sample units, in the order shown.
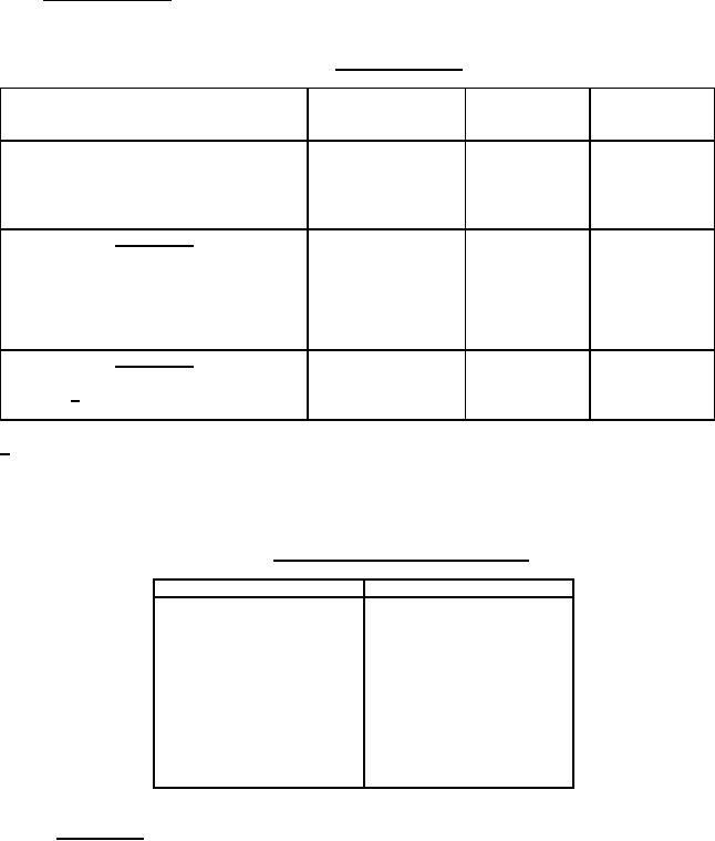
TABLE V. Group A inspection.
Inspection
Requirement
Test
Sampling
paragraph
Method
procedure
paragraph
Subgroup 1
3.6
4.5.3
See table VI
DC leakage
3.7
4.5.4
Capacitance
3.8
4.5.5
Dissipation factor
Subgroup 2
Visual and mechanical examination:
5 samples
Material
3.3 and 3.31
4.5.1
0 failures
Physical dimentions
3.4
Design and construction (other than
3.4.1 to 3.4.3
physical dimentions
Subgroup 3
5 samples
Marking 1/
3.22 and 3.22.1
4.5.1
0 failures
Workmanship
3.23
1/ Marking defects are based on visual examination only and shall be charged only for illegible,
incomplete, or incorrect marking. Any subsequent electrical defects shall not be used
as a basis for determining marking defects.
TABLE VI. Sampling plans for Group A inspection.
Lot size
Sample size
1
13
100%
14
150
13
151
280
20
281
500
29
501 1,200
34
1,201 3,200
42
3,201 10,000
50
10,001 35,000
60
35,001 150,000
74
150,001 500,000
90
500,001 - Up
102
4.4.1.2.2 Rejected lots. If an inspection lot is rejected, the supplier may withdraw the lot, rework it to correct the
defects, or screen out the defective units, as applicable, and re-inspect. Such lots shall be separate from new lots,
and shall be clearly identified as re-inspected lots.
11
For Parts Inquires submit RFQ to Parts Hangar, Inc.
© Copyright 2015 Integrated Publishing, Inc.
A Service Disabled Veteran Owned Small Business