
INCH-POUND
MIL-DTL-3965/21F
19 August 2002
SUPERSEDING
MIL-C-3965/21E
8 June 1972
DETAIL SPECIFICATION
CAPACITOR, FIXED ELECTROLYTIC (NONSOLID ELECTROLYTE), TANTALUM,
(POLARIZED, SINTERED SLUG) 85°C (VOLTAGE DERATED TO 125°C) STYLE CL55
GENERAL SPECIFICATION FOR
This specification is approved for use by all Depart-
ments and Agencies of the Department of Defense.
INACTIVE FOR NEW EQUIPMENT DESIGN.
NO SUPERSEDING DOCUMENT.
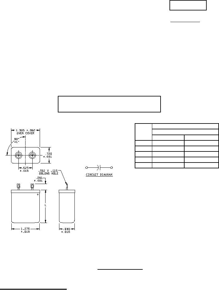
Dimensions
L ±.031 (.79)
In
mm
A1
1.062
26.97
A2
1.375
34.93
A3
1.625
41.28
A4
2.000
50.80
A5
2.500
63.50
Inches
mm
.015
.38
.031
.79
.062
1.57
.125
3.18
.281
7.14
.625
15.88
.690
17.53
.720
18.29
1.275
32.39
NOTES:
1.305
33.15
1. All dimensions in inches.
2. Metric equivalents are given for general information only.
FIGURE 1. Style CL55 capacitors.
AMSC N/A
1 of 7
FSC 5910
DISTRIBUTION STATEMENT A. Approved for public release; distribution is unlimited.