
MIL-PRF-11693E
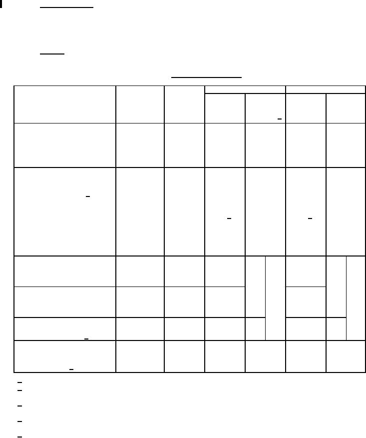
4.4.2 Inspection routine. The sample shall be subjected to the inspections specified in table VI, in the order
shown. All sample units shall be subjected to the examinations of group I (two sample units shall be subjected to the
visual and mechanical examination (internal) and the remaining sample units shall be subjected to the subsequent
examinations of group I. The specimens will then be divided into the remaining groups specified in table VI, and
subjected to the tests for their particular group.
4.4.3 Failures. Failures in excess of those allowed in table VI shall be cause for refusal to grant qualification
approval.
TABLE VI. Qualification Inspection.
NON-ER
ER
Number of
Number of
Test method
Requirement
Number of
Number of
Inspection
sample units
sample units
paragraph
paragraph
defects
defects
to be
to be
permitted 1/
permitted
inspected
inspected
Group I
Visual and mechanical
examination (internal):
Material and workmanship
2
0
2
0
3.5.3.1, and
Visual and mechanical
examination (external):
Physical dimensions, marking,
and workmanship 2/
Seal
Terminal strength
29 3/
57 3/
Dielectric withstanding voltage
1
1
Insulation resistance
Capacitance
Dissipation factor
Insertion loss
DC resistance
Group II
Resistance to soldering heat
Salt atmosphere (corrosion)
6
6
Thermal shock and immersion
1
1
Group III
Shock (specified pulse)
1
1
Vibration, high frequency
6
6
Moisture resistance
Group IV
Solderability
4
1
4
1
Resistance to solvents 5/
Group V
Low temperature and capacitance
change at reduced temperature
12
1
40
1
Life (accelerated) 4/
1/ A specimen having one or more defects will be considered as a single defective.
2/ Marking will be considered as a defect only if it becomes illegible as a result of any of the tests of the
specification.
3/ One additional specimen is included in each sample of 31 or 59 specimens as applicable to permit substitution
for the allowable defective in group I.
4/ The decision as to whether or not the NON-ER product is to be included on the qualified products list shall be
made at the end of the 240 hour life test and at the conclusion of the 2,000-hour life test for the ER parts.
5/ Two capacitors with sleeves and two unsleeved.
11
For Parts Inquires submit RFQ to Parts Hangar, Inc.
© Copyright 2015 Integrated Publishing, Inc.
A Service Disabled Veteran Owned Small Business