
INCH-POUND
MIL-PRF-14409/3D
9 July 2009
SUPERSEDING
MIL-PRF-14409/3C
25 July 2001
PERFORMANCE SPECIFICATION SHEET
CAPACITORS, VARIABLE (PISTON TYPE,
TUBULAR TRIMMER), STYLE PC37
This specification sheet is approved for use by all Departments
and Agencies of the Department of Defense.
The requirements for acquiring the capacitors described herein shall
consist of this specification sheet and MIL-PRF-14409.
Inactive for new design after 9 June 1969.
For replacement purposes only.
Inches
mm
.005
0.13
.016
0.41
.020
0.51
.062
1.57
.080
2.03
.112
2.84
.225
5.72
.230
5.84
.234
5.94
.250
6.35
.251
6.38
.255
6.48
.312
7.92
.375
9.53
1.50
38.10
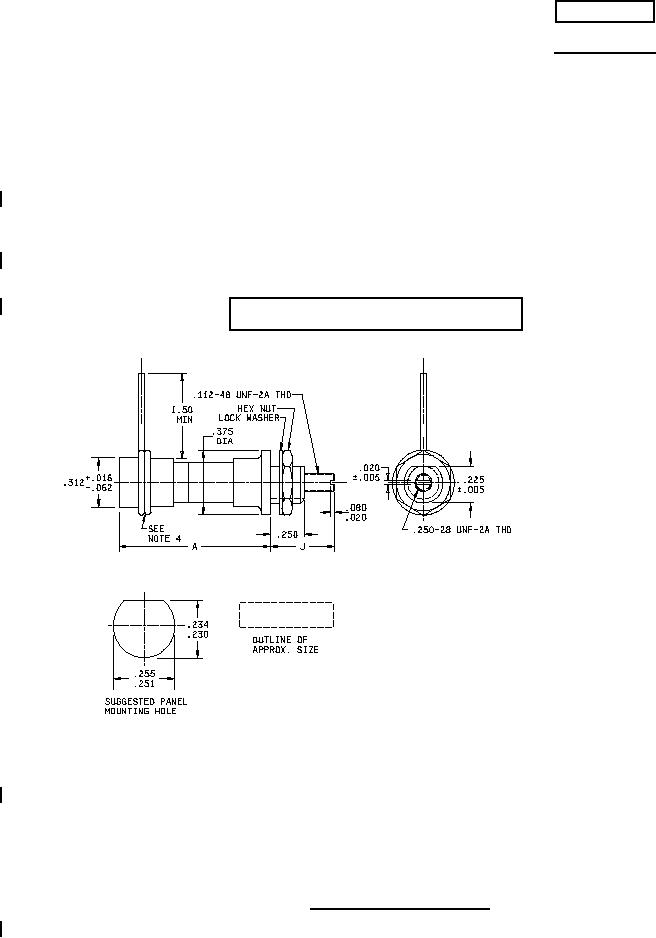
NOTES:
1. Dimensions are in inches.
2. Metric equivalents (to the nearest 0.01 mm) are given for general information only.
3. Unless otherwise specified, tolerance is ±.016.
4. There shall be a minimum of one and one-half turns of AWG size 22 wire around the body. These turns of
wire shall be completely soldered to the body.
5. The flat on the mounting bushing shall extend to the mounting surface of the shoulder.
6. For dimensions A and J, see table I.
FIGURE 1. Dimensions and configuration.
AMSC N/A
FSC 5910