
INCH POUND
MIL-PRF-81/5C
25 May 1999
SUPERSEDING
MIL-C-81/5B
27 December 1989
PERFORMANCE SPECIFICATION SHEET
CAPACITORS, VARIABLE, CERAMIC DIELECTRIC,
STYLE CV34
This specification is approved for use by all Departments
and Agencies of the Department of Defense.
The requirements for acquiring the product described herein shall
consist of this specification and MIL-PRF-81.
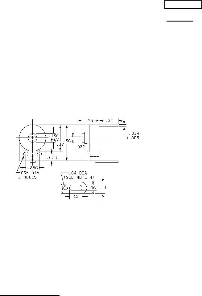
Inches
mm
Inches
mm
.005
0.13
.120
3.05
.014
0.35
.130
3.30
.032
0.81
.250
6.35
.040
1.02
.260
6.60
.050
1.27
.270
6.86
.065
1.65
.370
9.40
.070
1.78
.500
12.70
.110
2.79
NOTES:
1. Dimensions are in inches.
2. Metric equivalents are given for general information only.
3. Unless otherwise specified, tolerances are ±.02 (0.51 mm) for two place decimals and ±.010 (0.25 mm) for
three place decimals.
4. This hole is optional.
FIGURE 1. Dimensions and configurations.
AMSC N/A
1 of 3
FSC 5910
DISTRIBUTION STATEMENT A. Approved for public release; distribution is unlimited.