
MIL-PRF-39018/4E
TABLE I. Styles CU71 and CUR71 capacitors - Continued.
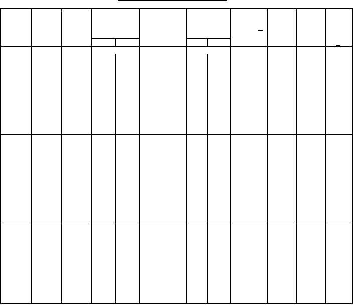
Maximum
Maximum
DC rated Capa-
DC
Equivalent
impedance at
DC leakage
AC ripple
CU71 CUR71
-55°C and
voltage citance
surge
series
current 1/
Case
dash
dash
at 85°C
resistance
voltage
size
number number
120 Hz at
120 Hz
at 85°C
85°C
25°
85°
25°
85°
2/
µF
Ω
Ω
Volts
Volts
mA
Amps
150
220
250
.700
1.000
13.20
.27
1.60
.80
A0
0059
2210-
150
330
250
.480
.680
9.00
.36
2.00
.98
A0
0060
2211-
150
470
250
.340
.480
6.20
.42
2.39
1.46
B0
0061
2212-
150
680
250
.230
.310
4.40
.47
2.82
1.88
D0
0062
2213-
150
1,000
250
.200
.225
2.90
.58
3.48
2.68
B1
0063
2214-
150
1,500
250
.130
.150
1.80
.71
4.26
3.12
C1
0064
2215-
150
2,200
250
.090
.100
1.35
.86
5.16
5.10
C2
0065
2216-
150
3,300
250
.060
.070
.90
1.10
6.30
6.80
C3
0066
2217-
150
4,700
250
.042
.056
.62
1.34
7.60
8.90
F3
0067
2218-
200
150
300
1.000 1.500
18.30
.26
1.56
.66
A0
0068
2219-
200
220
300
.700 1.000
12.80
.31
1.86
1.00
B0
0069
2220-
A1
200
330
300
.480
.680
8.30
.39
2.34
1.50
0070
2221-
C0
200
470
300
.320
.480
5.80
.46
2.76
1.54
0071
2222-
E0
200
680
300
.230
.320
4.00
.55
3.30
1.97
0072
2223-
C1
200
1,000
300
.200
.230
2.70
.72
4.02
2.74
0073
2224-
E1
200
1,500
300
.130
.150
1.70
.82
4.92
3.20
0074
2225-
D2
200
2,200
300
.090
.100
1.35
1.00
6.00
5.40
0075
2226-
D3
200
3,300
300
.060
.070
.90
1.20
7.20
7.00
0076
2227-
F3
200
4,100
300
.048
.065
.72
1.36
8.20
8.70
0077
2228-
250
100
300
1.300 2.000
27.50
.24
1.44
.60
A0
0078
2229-
250
220
300
.600
.900
12.50
.35
2.10
1.10
A1
0079
2230-
250
330
300
.400
.600
8.30
.43
2.58
1.40
C0
0080
2231-
250
470
300
.420
.450
5.80
.51
3.06
1.90
B1
0081
2232-
250
680
300
.300
.310
4.00
.62
3.72
2.50
C1
0082
2233-
250
1,000
300
.200
.210
2.70
.75
4.50
3.00
D1
0083
2234-
250
1,500
300
.130
.140
1.70
.92
5.52
3.70
C2
0084
2235-
250
2,200
300
.090
.110
1.20
1.10
6.60
5.20
C3
0085
2236-
250
3,300
300
.060
.075
.83
1.45
8.17
7.70
F3
0086
2237-
See footnotes at end of table.
8
For Parts Inquires submit RFQ to Parts Hangar, Inc.
© Copyright 2015 Integrated Publishing, Inc.
A Service Disabled Veteran Owned Small Business